Warehouse to Let in Lusaka CBD
- Price on Request
- Price on Request
Overview
- 19416
- 504 sq mt
Description
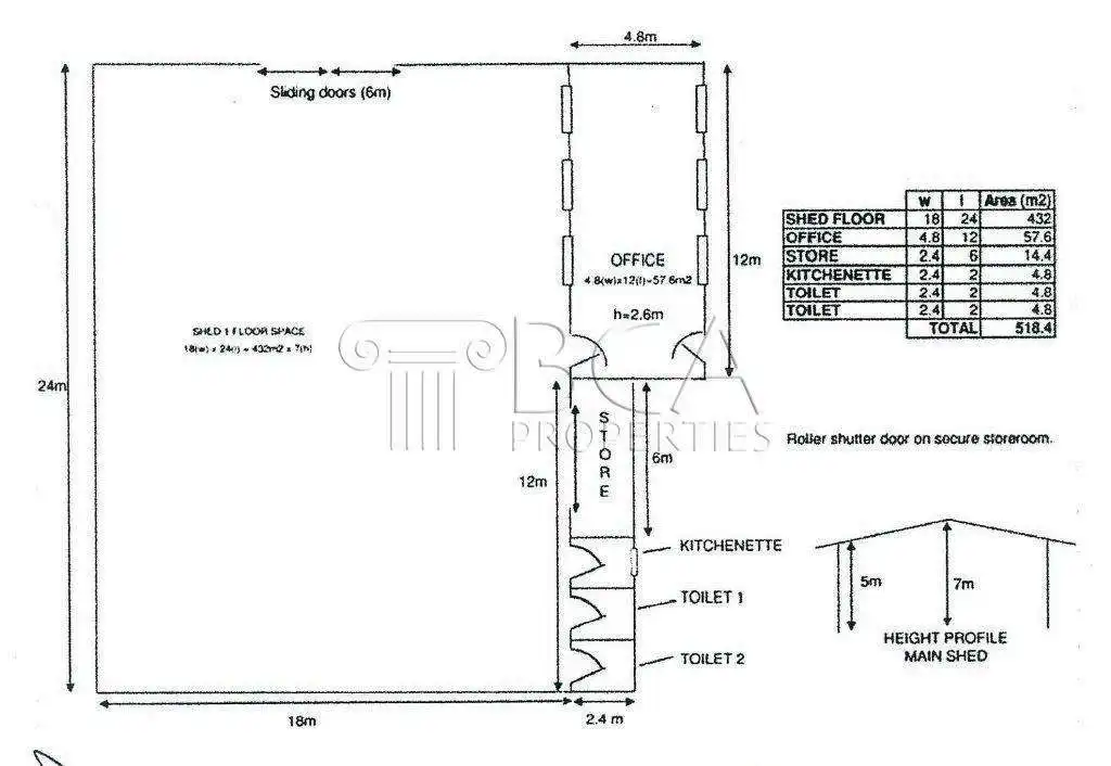
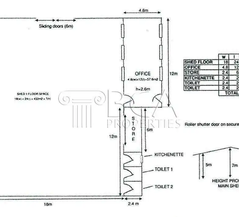
Warehouse to Let in Lusaka CBD | 432 sqm with Attached Office
Central business district location | Separate office space | Staff facilities included
This CBD warehouse gives you 432 square metres of storage space with a 57.6 square metre office attached to the main building. The setup works for businesses that need stock holding in a central location whilst managing operations from an on-site office.
The warehouse floor provides open-plan storage area suitable for racking systems or bulk goods. The attached office section is separate from the main floor, with its own entrance for staff and visitors. There’s also a 14.4 square metre dedicated storage room for documents, equipment, or high-value items that need extra security.
Staff amenities include a functional kitchenette and both male and female toilet facilities within the building. The CBD location means you’re close to banks, suppliers, and customers without needing to travel across town. Loading access is practical for delivery vehicles, though space is tighter than in industrial areas due to the central position.
What’s Included:
- Main warehouse: 432 sqm open floor
- Attached office space: 57.6 sqm
- Secure storage room: 14.4 sqm
- Staff kitchenette
- Male and female WC facilities
- ZESCO power connection
- Central Lusaka location
- Long-term lease preferred
The CBD position suits businesses prioritising accessibility over sprawling space, particularly retail suppliers or service companies needing stock close to their customer base.
Address
Open on Google Maps-
Town/City: Lusaka
-
Province/State: Lusaka Province
-
Area/Neighbourhood: Central Business Area (CBD)
-
Country: Zambia
Details
Updated on December 25, 2025 at 8:05 pm-
Property ID BCA-19416
-
Price Price on Request
-
Property Size 504 sq mt
-
Rooms 3
-
Property Type Warehouse, Industrial Property
-
Property Status To Rent








